Barrierefreie 2-Zimmer-Wohnung mit wunderschönem Gartenanteil - ruhig & zentral gelegen
Objektart
Adresse
Objektdaten
Informationen
Ausstattung
Details
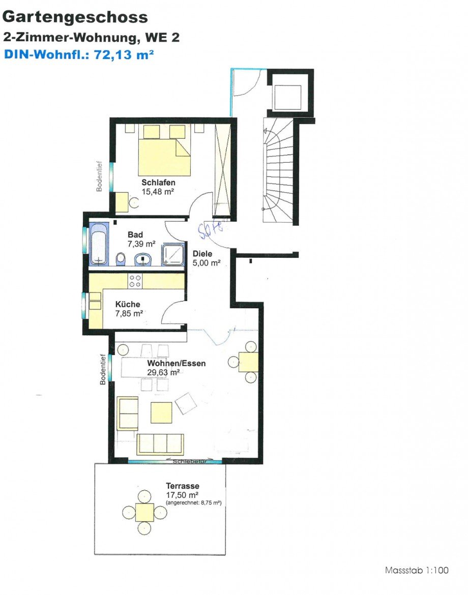
Diese wunderschöne und großzügige 2-Zimmer-Wohnung mit etwa 72 m² Wohnfläche befindet sich im Gartengeschoss eines gepflegten Mehrfamilienhauses aus dem Jahr 2005 mit insgesamt nur fünf Wohneinheiten. Schon beim Betreten spürt man die besondere Atmosphäre dieser Immobilie, die durch Helligkeit, Großzügigkeit und liebevolle Details besticht. Der offen gestaltete Wohnbereich ist lichtdurchflutet und überzeugt mit verputzten Wänden, einem hellen Fliesenboden sowie dem direkten Zugang zur überdachten Terrasse und dem eigenen Garten. Der Garten ist ein echtes Highlight dieser Wohnung: liebevoll angelegt, mit viel Grün, Raum zur Erholung und einem Gartenhäuschen, das praktischen Stauraum für Geräte und Zubehör bietet. Hier lässt es sich herrlich entspannen, gärtnern oder mit Freunden den Feierabend genießen.
Die Küche ist in einem zeitlosen weißen Landhausstil gehalten und sehr gepflegt - einladend und funktional zugleich. Das Tageslichtbad verfügt über eine Badewanne, eine separate Dusche, ein WC sowie ein Waschbecken und ist ebenso in einem sehr guten Zustand. Das Schlafzimmer bietet mit bodentiefen Fenstern, hochwertigem Parkettboden und einem großen Einbauschrank eine ruhige und stilvolle Rückzugsmöglichkeit. Weiße Holztüren und doppelt verglaste Isolierfenster unterstreichen den gepflegten, hellen Charakter der Wohnung.
Ein Aufzug ist im Haus vorhanden. Zur Wohnung gehört ein eigener Kellerraum im Untergeschoss. Zusätzlich steht ein gemeinschaftlicher Wasch- und Trockenraum zur Verfügung. Ein Außenstellplatz direkt am Haus rundet dieses attraktive Angebot ab.
Wohnbereich: Großzügig und lichtdurchflutet mit direktem Zugang zur überdachten Terrasse und in den Garten, heller Fliesenboden, verputzte Wände
Schlafzimmer: Hochwertiger Parkettboden, bodentiefe Fenster, dekorative Tapete, großer Einbauschrank
Küche: Weiße, gepflegte Einbauküche im Landhausstil, Wände halbhoch gefliest und oberhalb verputzt
Badezimmer: Tageslichtbad mit Badewanne, separater Dusche und Waschbecken, deckenhoch gefliest
Garten: Eigener, liebevoll angelegter Gartenanteil mit überdachter Terrasse und Gartenhäuschen zur Aufbewahrung von Geräten und Zubehör
Fenster und Türen: Doppelverglaste Kunststofffenster, weiße Holztüren im gesamten Wohnbereich
Heizung: Gas-Zentralheizung
Zusätzliche Ausstattung: Aufzug im Haus, separater Kellerraum im Untergeschoss, gemeinschaftlicher Wasch- und Trockenraum, Pkw-Stellplatz im Freien direkt am Haus
Hausgeld: Monatlich 379,00 EUR, davon 225,00 EUR umlagefähige Kosten
Die Wohnung befindet sich in einem gepflegten, ruhigen Wohngebiet im Reutlinger Westen - einer der beliebtesten Wohnlagen der Stadt. Die Umgebung ist geprägt von viel Grün, charmanten Mehrfamilienhäusern und einer angenehmen Nachbarschaft. Hier wohnt man stadtnah und dennoch entspannt.
Die Reutlinger Innenstadt mit ihrer attraktiven Fußgängerzone, vielfältigen Einkaufsmöglichkeiten, Cafés und Restaurants ist in wenigen Minuten erreichbar. Auch Supermärkte, Bäcker, Apotheken sowie Ärzte befinden sich in komfortabler Nähe und machen den Alltag besonders angenehm.
Wer gerne im Grünen unterwegs ist, wird die fußläufig erreichbaren Naherholungsgebiete zu schätzen wissen. Spaziergänge oder sportliche Aktivitäten im Markwasen, am Freibad oder entlang der Echaz sorgen für Ausgleich und Erholung direkt vor der Haustür.
Zudem ist die Anbindung an den öffentlichen Nahverkehr hervorragend - Bushaltestellen befinden sich in direkter Umgebung. Auch Pendler profitieren von der schnellen Erreichbarkeit der B27 und B28, über die man zügig nach Tübingen, Stuttgart oder zur Schwäbischen Alb gelangt.
Eine rundum attraktive Wohnlage, die urbanes Leben mit naturnahem Wohnen auf ideale Weise verbindet.
Energieausweis liegt zur Besichtigung vor.
Ansprechpartner
Telefax: 00497121164444
sz@zicklerimmobilien.de
Energieausweis (Verbrauchsausweis)
87 kWh / (m²*a) Energieverbrauchskennwert
87 kWh / (m²*a) Energieverbrauchskennwert
87 kWh / (m²*a) Energieverbrauchskennwert
Weitere Informationen
| Wesentlicher Energieträger | Erdgas leicht |
| Energieausweis gültig bis | 2028-10-08 |
| Energieausweis Jahrgang | ab dem 1.5.2014 |
| Energieausweis Werteklasse | C |
| Energieausweis Baujahr | 2003 |
| Energieausweis Gebäudeart | Wohngebäude |
| Heizung | Zentralheizung |
| Befeuerung | Gas |
Ich bin damit einverstanden, dass mir Karten von Google angezeigt werden. Es gelten die Datenschutzbedingungen von Google (https://policies.google.com/privacy).
Ich bin einverstanden